Сайт по умолчанию
Готовый интернет-магазин электроники
Каталог
По всему сайту
По каталогу
Каталог
Плитка и керамогранит
Ступени
Рисунок
Форма
Цвет
Страна
Назначение
Душевые кабины и углы
Душевые кабины
Душевые ограждения
Двери в нишу
Перегородка для душа
Поддоны
Шторки для ванн
Запчасти для душевых кабин
Гидродуши
Ванны
Акриловые ванны
Стальные ванны
Чугунные ванны
Ванны из литьевого мрамора
Мебель для ванной
Тумбы с раковинами
Столешницы
Зеркала
Зеркальные шкафы
Комплекты мебели
Пеналы
Тумбы и шкафы
Санфаянс
Биде
Раковины
Унитазы
Крышки биде
Писсуары
Электронные унитазы
Смесители
Набор для ванной комнаты
Сенсорные смесители
Встраиваемые смесители
Врезные смесители в борт ванны
Смесители для биде
Смесители для ванны и душа
Смесители для раковины
Смесители для душа
Смесители для кухни
Универсальные смесители
Смесители напольные
Смесители Порционные
Запчасти для смесителей
Душевая программа
Душевые стойки
Душевые комплекты
Душевые панели
Тропический душ
Гигиенический комплект
Гигиенический душ
Душевые гарнитуры
Кронштейны
Держатели
Душевые лейки
Изливы
Шланговые подсоединения
Душевые шланги
Душевые штанги
Боковой душ(форсунки)
Инсталляции
Бачки скрытого монтажа
Инсталляции для биде
Инсталляции для раковины
Для унитаза
Клавиши смыва
Комплекты инсталляция с унитазом
Для душевой системы
Инсталляции для видуара
Инсталляции для смесителя
Инсталляции для писсуаров
Инсталляции для поручней
Полотенцесушители
Водяной
Электрический
Аксессуары для ванных комнат
Бумагодержатель
Ведро
Дозатор жидкого мыла
Ерш
Зеркало увеличительное
Карниз для ванн
Крючок
Многофункциональная стойка
Мыльница
Набор
Полка
Полотенцедержатель
Поручень
Стакан
Светильники
Водосгон
Держатель для зубных щеток
Веревка для белья
Газетница
Держатель для губки
Держатель для освежителя
Держатель фена
Дозатор бумажных салфеток
Ковры
Контейнер
Корзины для белья
Стакан для ватных дисков
Сиденье
Сушилка для белья
Фен
Отбойник для стеклянной двери
Текстильные шторки для ванн
Дренажные системы
Дренажные каналы
Решетки для дренажных систем
Трапы
Сауны
Кухонные мойки
Диспенсеры и рукосушители
Рукосушители
Для полотенец
Для жидкого мыла
Для туалетной бумаги
Для освежителя воздуха
Гигиеническое сиденье
Диспенсер для салфеток
Диспенсер для дезинфицирующего средства
Комплектующие
Для ванн
Для душевых кабин
Комплектующие для раковин
Комплектующие для трапов
Комплектующие для унитазов
Для смесителей
Для кухонных моек
Для мебели
Для полотенцесушителей
Для душевых поддонов
Комплектующие для дренажных каналов
Для биде
Для крышек биде
Комплектующие для аксессуаров
Для душевых панелей
Для инсталляций
Комплектующие для писсуаров
Ролики для душевых кабин
Системы защиты от протечек
Для радиаторов
Радиаторы
Сифоны и гофры
Донные клапаны
Сифоны для ванн
Сифоны для душевых поддонов
Сифоны для раковин
Сифоны для мойки
Сифоны для биде
Сифоны для писсуаров
Сифоны для сбора конденсата
Сифоны для стиральной машины
Гофры и отводы для унитаза
Купели
Вентиляторы вытяжные
Клинкерная плитка
Размер
Поверхность
Помещение
Мозаика
Материал
Размер
Помещение
Назначение
Форма фишки
Поверхность
Стройматериалы
Клей плиточный
Смеси и затирки
Грунт
Выравнивающие элементы
Сопутствующие товары для затирки
Двери
Дверные коробки, наличники и доборы
Межкомнатные двери
Диспоузеры (измельчители)
Вентиляторы
Spa-бассейны
Товары для бани и сауны
Средства для бани
Спа-капсулы
Клининг
Мыло
Перчатки
Протирочные материалы
Освежитель воздуха
Покрытие на сидение унитаза
Полотенца
Туалетная бумага
Гель для душа
Акции
Услуги
Блог
Бренды
Как купить
Условия оплаты
Условия доставки
Гарантия на товар
Компания
О компании
Новости
Команда
Отзывы
Карьера
Контакты
Партнеры
Лицензии
Документы
Контакты
+7 (383) 287-94-27
Заказать звонок
Задать вопрос
Войти
  • Корзина0
  • Избранные товары0
  • Сравнение товаров0
info@keramiknsk.ru
г. Новосибирск ТВК "Красный Мамонт" ул. Светлановская 50 к1, 1 этаж салон "Керамик"
  • Telegram
  • WhatsApp
  • Дизайн-проект
  • Акции
  • Публикации
  • Как купить
  • Компания
  • Контакты
  • Коллекции
  • ...
    +7 (383) 287-94-27
    Заказать звонок
    Войти
    Сайт по умолчанию
    Каталог
    • Плитка и керамогранит
    • Ступени
      • Рисунок
      • Форма
      • Цвет
      • Страна
      • Назначение
      • Ещё 2
    • Душевые кабины и углы
      • Душевые кабины
      • Душевые ограждения
      • Двери в нишу
      • Перегородка для душа
      • Поддоны
      • Шторки для ванн
      • Запчасти для душевых кабин
      • Гидродуши
      • Ещё 5
    • Ванны
      • Акриловые ванны
      • Стальные ванны
      • Чугунные ванны
      • Ванны из литьевого мрамора
      • Ещё 1
    • Мебель для ванной
      • Тумбы с раковинами
      • Столешницы
      • Зеркала
      • Зеркальные шкафы
      • Комплекты мебели
      • Пеналы
      • Тумбы и шкафы
      • Ещё 4
    • Санфаянс
      • Биде
      • Раковины
      • Унитазы
      • Крышки биде
      • Писсуары
      • Электронные унитазы
      • Ещё 3
    • Смесители
      • Набор для ванной комнаты
      • Сенсорные смесители
      • Встраиваемые смесители
      • Врезные смесители в борт ванны
      • Смесители для биде
      • Смесители для ванны и душа
      • Смесители для раковины
      • Смесители для душа
      • Смесители для кухни
      • Универсальные смесители
      • Смесители напольные
      • Смесители Порционные
      • Запчасти для смесителей
      • Ещё 10
    • Душевая программа
      • Душевые стойки
      • Душевые комплекты
      • Душевые панели
      • Тропический душ
      • Гигиенический комплект
      • Гигиенический душ
      • Душевые гарнитуры
      • Кронштейны
      • Держатели
      • Душевые лейки
      • Изливы
      • Шланговые подсоединения
      • Душевые шланги
      • Душевые штанги
      • Боковой душ(форсунки)
      • Ещё 12
    • Инсталляции
      • Бачки скрытого монтажа
      • Инсталляции для биде
      • Инсталляции для раковины
      • Для унитаза
      • Клавиши смыва
      • Комплекты инсталляция с унитазом
      • Для душевой системы
      • Инсталляции для видуара
      • Инсталляции для смесителя
      • Инсталляции для писсуаров
      • Инсталляции для поручней
      • Ещё 8
    • Полотенцесушители
      • Водяной
      • Электрический
    • Аксессуары для ванных комнат
      • Бумагодержатель
      • Ведро
      • Дозатор жидкого мыла
      • Ерш
      • Зеркало увеличительное
      • Карниз для ванн
      • Крючок
      • Многофункциональная стойка
      • Мыльница
      • Набор
      • Полка
      • Полотенцедержатель
      • Поручень
      • Стакан
      • Светильники
      • Водосгон
      • Держатель для зубных щеток
      • Веревка для белья
      • Газетница
      • Держатель для губки
      • Держатель для освежителя
      • Держатель фена
      • Дозатор бумажных салфеток
      • Ковры
      • Контейнер
      • Корзины для белья
      • Стакан для ватных дисков
      • Сиденье
      • Сушилка для белья
      • Фен
      • Отбойник для стеклянной двери
      • Текстильные шторки для ванн
      • Ещё 29
    • Дренажные системы
      • Дренажные каналы
      • Решетки для дренажных систем
      • Трапы
    • Сауны
    • Кухонные мойки
    • Диспенсеры и рукосушители
      • Рукосушители
      • Для полотенец
      • Для жидкого мыла
      • Для туалетной бумаги
      • Для освежителя воздуха
      • Гигиеническое сиденье
      • Диспенсер для салфеток
      • Диспенсер для дезинфицирующего средства
      • Ещё 5
    • Комплектующие
      • Для ванн
      • Для душевых кабин
      • Комплектующие для раковин
      • Комплектующие для трапов
      • Комплектующие для унитазов
      • Для смесителей
      • Для кухонных моек
      • Для мебели
      • Для полотенцесушителей
      • Для душевых поддонов
      • Комплектующие для дренажных каналов
      • Для биде
      • Для крышек биде
      • Комплектующие для аксессуаров
      • Для душевых панелей
      • Для инсталляций
      • Комплектующие для писсуаров
      • Ролики для душевых кабин
      • Системы защиты от протечек
      • Для радиаторов
      • Ещё 17
    • Радиаторы
    • Сифоны и гофры
      • Донные клапаны
      • Сифоны для ванн
      • Сифоны для душевых поддонов
      • Сифоны для раковин
      • Сифоны для мойки
      • Сифоны для биде
      • Сифоны для писсуаров
      • Сифоны для сбора конденсата
      • Сифоны для стиральной машины
      • Гофры и отводы для унитаза
      • Ещё 7
    • Купели
    • Вентиляторы вытяжные
    • Клинкерная плитка
      • Размер
      • Поверхность
      • Помещение
    • Мозаика
      • Материал
      • Размер
      • Помещение
      • Назначение
      • Форма фишки
      • Поверхность
      • Ещё 3
    • Стройматериалы
      • Клей плиточный
      • Смеси и затирки
      • Грунт
      • Выравнивающие элементы
      • Сопутствующие товары для затирки
      • Ещё 2
    • Двери
      • Дверные коробки, наличники и доборы
      • Межкомнатные двери
    • Диспоузеры (измельчители)
    • Вентиляторы
    • Spa-бассейны
    • Товары для бани и сауны
      • Средства для бани
    • Спа-капсулы
    • Клининг
      • Мыло
      • Перчатки
      • Протирочные материалы
      • Освежитель воздуха
      • Покрытие на сидение унитаза
      • Полотенца
      • Туалетная бумага
      • Гель для душа
      • Ещё 5
    Каталог
    По всему сайту
    По каталогу
    Сравнение0
    Избранные товары 0
    Корзина 0
    Сайт по умолчанию
    Каталог
    • Плитка и керамогранит
    • Ступени
      • Рисунок
      • Форма
      • Цвет
      • Страна
      • Назначение
      • Ещё 2
    • Душевые кабины и углы
      • Душевые кабины
      • Душевые ограждения
      • Двери в нишу
      • Перегородка для душа
      • Поддоны
      • Шторки для ванн
      • Запчасти для душевых кабин
      • Гидродуши
      • Ещё 5
    • Ванны
      • Акриловые ванны
      • Стальные ванны
      • Чугунные ванны
      • Ванны из литьевого мрамора
      • Ещё 1
    • Мебель для ванной
      • Тумбы с раковинами
      • Столешницы
      • Зеркала
      • Зеркальные шкафы
      • Комплекты мебели
      • Пеналы
      • Тумбы и шкафы
      • Ещё 4
    • Санфаянс
      • Биде
      • Раковины
      • Унитазы
      • Крышки биде
      • Писсуары
      • Электронные унитазы
      • Ещё 3
    • Смесители
      • Набор для ванной комнаты
      • Сенсорные смесители
      • Встраиваемые смесители
      • Врезные смесители в борт ванны
      • Смесители для биде
      • Смесители для ванны и душа
      • Смесители для раковины
      • Смесители для душа
      • Смесители для кухни
      • Универсальные смесители
      • Смесители напольные
      • Смесители Порционные
      • Запчасти для смесителей
      • Ещё 10
    • Душевая программа
      • Душевые стойки
      • Душевые комплекты
      • Душевые панели
      • Тропический душ
      • Гигиенический комплект
      • Гигиенический душ
      • Душевые гарнитуры
      • Кронштейны
      • Держатели
      • Душевые лейки
      • Изливы
      • Шланговые подсоединения
      • Душевые шланги
      • Душевые штанги
      • Боковой душ(форсунки)
      • Ещё 12
    • Инсталляции
      • Бачки скрытого монтажа
      • Инсталляции для биде
      • Инсталляции для раковины
      • Для унитаза
      • Клавиши смыва
      • Комплекты инсталляция с унитазом
      • Для душевой системы
      • Инсталляции для видуара
      • Инсталляции для смесителя
      • Инсталляции для писсуаров
      • Инсталляции для поручней
      • Ещё 8
    • Полотенцесушители
      • Водяной
      • Электрический
    • Аксессуары для ванных комнат
      • Бумагодержатель
      • Ведро
      • Дозатор жидкого мыла
      • Ерш
      • Зеркало увеличительное
      • Карниз для ванн
      • Крючок
      • Многофункциональная стойка
      • Мыльница
      • Набор
      • Полка
      • Полотенцедержатель
      • Поручень
      • Стакан
      • Светильники
      • Водосгон
      • Держатель для зубных щеток
      • Веревка для белья
      • Газетница
      • Держатель для губки
      • Держатель для освежителя
      • Держатель фена
      • Дозатор бумажных салфеток
      • Ковры
      • Контейнер
      • Корзины для белья
      • Стакан для ватных дисков
      • Сиденье
      • Сушилка для белья
      • Фен
      • Отбойник для стеклянной двери
      • Текстильные шторки для ванн
      • Ещё 29
    • Дренажные системы
      • Дренажные каналы
      • Решетки для дренажных систем
      • Трапы
    • Сауны
    • Кухонные мойки
    • Диспенсеры и рукосушители
      • Рукосушители
      • Для полотенец
      • Для жидкого мыла
      • Для туалетной бумаги
      • Для освежителя воздуха
      • Гигиеническое сиденье
      • Диспенсер для салфеток
      • Диспенсер для дезинфицирующего средства
      • Ещё 5
    • Комплектующие
      • Для ванн
      • Для душевых кабин
      • Комплектующие для раковин
      • Комплектующие для трапов
      • Комплектующие для унитазов
      • Для смесителей
      • Для кухонных моек
      • Для мебели
      • Для полотенцесушителей
      • Для душевых поддонов
      • Комплектующие для дренажных каналов
      • Для биде
      • Для крышек биде
      • Комплектующие для аксессуаров
      • Для душевых панелей
      • Для инсталляций
      • Комплектующие для писсуаров
      • Ролики для душевых кабин
      • Системы защиты от протечек
      • Для радиаторов
      • Ещё 17
    • Радиаторы
    • Сифоны и гофры
      • Донные клапаны
      • Сифоны для ванн
      • Сифоны для душевых поддонов
      • Сифоны для раковин
      • Сифоны для мойки
      • Сифоны для биде
      • Сифоны для писсуаров
      • Сифоны для сбора конденсата
      • Сифоны для стиральной машины
      • Гофры и отводы для унитаза
      • Ещё 7
    • Купели
    • Вентиляторы вытяжные
    • Клинкерная плитка
      • Размер
      • Поверхность
      • Помещение
    • Мозаика
      • Материал
      • Размер
      • Помещение
      • Назначение
      • Форма фишки
      • Поверхность
      • Ещё 3
    • Стройматериалы
      • Клей плиточный
      • Смеси и затирки
      • Грунт
      • Выравнивающие элементы
      • Сопутствующие товары для затирки
      • Ещё 2
    • Двери
      • Дверные коробки, наличники и доборы
      • Межкомнатные двери
    • Диспоузеры (измельчители)
    • Вентиляторы
    • Spa-бассейны
    • Товары для бани и сауны
      • Средства для бани
    • Спа-капсулы
    • Клининг
      • Мыло
      • Перчатки
      • Протирочные материалы
      • Освежитель воздуха
      • Покрытие на сидение унитаза
      • Полотенца
      • Туалетная бумага
      • Гель для душа
      • Ещё 5
    Акции
    Услуги
    Блог
    Бренды
    Как купить
    • Условия оплаты
    • Условия доставки
    • Гарантия на товар
    Компания
    • О компании
    • Новости
    • Команда
    • Отзывы
    • Карьера
    • Контакты
    • Партнеры
    • Лицензии
    • Документы
    Контакты
    Ещё
      Сравнение0
      Избранные товары 0
      Корзина 0
      Сайт по умолчанию
      Сравнение0 Избранные товары 0 Корзина 0
      Телефоны
      +7 (383) 287-94-27
      Заказать звонок
      • Каталог
        • Назад
        • Каталог
        • Плитка и керамогранит
        • Ступени
          • Назад
          • Ступени
          • Рисунок
          • Форма
          • Цвет
          • Страна
          • Назначение
        • Душевые кабины и углы
          • Назад
          • Душевые кабины и углы
          • Душевые кабины
          • Душевые ограждения
          • Двери в нишу
          • Перегородка для душа
          • Поддоны
          • Шторки для ванн
          • Запчасти для душевых кабин
          • Гидродуши
        • Ванны
          • Назад
          • Ванны
          • Акриловые ванны
          • Стальные ванны
          • Чугунные ванны
          • Ванны из литьевого мрамора
        • Мебель для ванной
          • Назад
          • Мебель для ванной
          • Тумбы с раковинами
          • Столешницы
          • Зеркала
          • Зеркальные шкафы
          • Комплекты мебели
          • Пеналы
          • Тумбы и шкафы
        • Санфаянс
          • Назад
          • Санфаянс
          • Биде
          • Раковины
          • Унитазы
          • Крышки биде
          • Писсуары
          • Электронные унитазы
        • Смесители
          • Назад
          • Смесители
          • Набор для ванной комнаты
          • Сенсорные смесители
          • Встраиваемые смесители
          • Врезные смесители в борт ванны
          • Смесители для биде
          • Смесители для ванны и душа
          • Смесители для раковины
          • Смесители для душа
          • Смесители для кухни
          • Универсальные смесители
          • Смесители напольные
          • Смесители Порционные
          • Запчасти для смесителей
        • Душевая программа
          • Назад
          • Душевая программа
          • Душевые стойки
          • Душевые комплекты
          • Душевые панели
          • Тропический душ
          • Гигиенический комплект
          • Гигиенический душ
          • Душевые гарнитуры
          • Кронштейны
          • Держатели
          • Душевые лейки
          • Изливы
          • Шланговые подсоединения
          • Душевые шланги
          • Душевые штанги
          • Боковой душ(форсунки)
        • Инсталляции
          • Назад
          • Инсталляции
          • Бачки скрытого монтажа
          • Инсталляции для биде
          • Инсталляции для раковины
          • Для унитаза
          • Клавиши смыва
          • Комплекты инсталляция с унитазом
          • Для душевой системы
          • Инсталляции для видуара
          • Инсталляции для смесителя
          • Инсталляции для писсуаров
          • Инсталляции для поручней
        • Полотенцесушители
          • Назад
          • Полотенцесушители
          • Водяной
          • Электрический
        • Аксессуары для ванных комнат
          • Назад
          • Аксессуары для ванных комнат
          • Бумагодержатель
          • Ведро
          • Дозатор жидкого мыла
          • Ерш
          • Зеркало увеличительное
          • Карниз для ванн
          • Крючок
          • Многофункциональная стойка
          • Мыльница
          • Набор
          • Полка
          • Полотенцедержатель
          • Поручень
          • Стакан
          • Светильники
          • Водосгон
          • Держатель для зубных щеток
          • Веревка для белья
          • Газетница
          • Держатель для губки
          • Держатель для освежителя
          • Держатель фена
          • Дозатор бумажных салфеток
          • Ковры
          • Контейнер
          • Корзины для белья
          • Стакан для ватных дисков
          • Сиденье
          • Сушилка для белья
          • Фен
          • Отбойник для стеклянной двери
          • Текстильные шторки для ванн
        • Дренажные системы
          • Назад
          • Дренажные системы
          • Дренажные каналы
          • Решетки для дренажных систем
          • Трапы
        • Сауны
        • Кухонные мойки
        • Диспенсеры и рукосушители
          • Назад
          • Диспенсеры и рукосушители
          • Рукосушители
          • Для полотенец
          • Для жидкого мыла
          • Для туалетной бумаги
          • Для освежителя воздуха
          • Гигиеническое сиденье
          • Диспенсер для салфеток
          • Диспенсер для дезинфицирующего средства
        • Комплектующие
          • Назад
          • Комплектующие
          • Для ванн
          • Для душевых кабин
          • Комплектующие для раковин
          • Комплектующие для трапов
          • Комплектующие для унитазов
          • Для смесителей
          • Для кухонных моек
          • Для мебели
          • Для полотенцесушителей
          • Для душевых поддонов
          • Комплектующие для дренажных каналов
          • Для биде
          • Для крышек биде
          • Комплектующие для аксессуаров
          • Для душевых панелей
          • Для инсталляций
          • Комплектующие для писсуаров
          • Ролики для душевых кабин
          • Системы защиты от протечек
          • Для радиаторов
        • Радиаторы
        • Сифоны и гофры
          • Назад
          • Сифоны и гофры
          • Донные клапаны
          • Сифоны для ванн
          • Сифоны для душевых поддонов
          • Сифоны для раковин
          • Сифоны для мойки
          • Сифоны для биде
          • Сифоны для писсуаров
          • Сифоны для сбора конденсата
          • Сифоны для стиральной машины
          • Гофры и отводы для унитаза
        • Купели
        • Вентиляторы вытяжные
        • Клинкерная плитка
          • Назад
          • Клинкерная плитка
          • Размер
          • Поверхность
          • Помещение
        • Мозаика
          • Назад
          • Мозаика
          • Материал
          • Размер
          • Помещение
          • Назначение
          • Форма фишки
          • Поверхность
        • Стройматериалы
          • Назад
          • Стройматериалы
          • Клей плиточный
          • Смеси и затирки
          • Грунт
          • Выравнивающие элементы
          • Сопутствующие товары для затирки
        • Двери
          • Назад
          • Двери
          • Дверные коробки, наличники и доборы
          • Межкомнатные двери
        • Диспоузеры (измельчители)
        • Вентиляторы
        • Spa-бассейны
        • Товары для бани и сауны
          • Назад
          • Товары для бани и сауны
          • Средства для бани
        • Спа-капсулы
        • Клининг
          • Назад
          • Клининг
          • Мыло
          • Перчатки
          • Протирочные материалы
          • Освежитель воздуха
          • Покрытие на сидение унитаза
          • Полотенца
          • Туалетная бумага
          • Гель для душа
      • Акции
      • Услуги
      • Блог
      • Бренды
      • Как купить
        • Назад
        • Как купить
        • Условия оплаты
        • Условия доставки
        • Гарантия на товар
      • Компания
        • Назад
        • Компания
        • О компании
        • Новости
        • Команда
        • Отзывы
        • Карьера
        • Контакты
        • Партнеры
        • Лицензии
        • Документы
      • Контакты
      • Личный кабинет
      • Корзина0
      • Избранные товары0
      • Сравнение товаров0
      • +7 (383) 287-94-27
      Контактная информация
      г. Новосибирск ТВК "Красный Мамонт" ул. Светлановская 50 к1, 1 этаж салон "Керамик"
      info@keramiknsk.ru
      • Telegram
      • WhatsApp

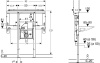
      Инсталляция для раковин GEBERIT Duofix 111.082.00.1

      Салон керамической плитки и сантехники
      —
      Каталог
      —
      Инсталляции
      —
      Инсталляции для раковины
      —Инсталляция для раковин GEBERIT Duofix 111.082.00.1
      Артикул: 111.082.00.1
      GEBERIT
      Инсталляция для раковин GEBERIT Duofix 111.082.00.1
      Инсталляция для раковин GEBERIT Duofix 111.082.00.1
      Инсталляция для раковин GEBERIT Duofix 111.082.00.1
      Инсталляция для раковин GEBERIT Duofix 111.082.00.1
      142 604 ₽/шт
      Уточняйте наличие
      Рассчитать доставку
      Самовывоз сегодня - бесплатно
      Доставка завтра - 390 ₽
      Характеристики
      Бренд
      —
      GEBERIT
      Цена действительна только для интернет-магазина и может отличаться от цен в розничных магазинах
      • Описание
      • Как купить
      • Оплата
      • Доставка
      • Дополнительно
      Компания Geberit была основана в 1874 году. Из крохотного жестяницкого предприятия она выросла в крупный европейский холдинг, на сегодня насчитывающий 5400 сотрудников, 24 офиса продаж и 19 заводов. Основные производственные мощности расположены в Швейцарии, Германии, Австрии. В основе работы Geberit лежит прежде всего сочетание давних традиций и современных инноваций, следствием которого является превосходное качество изделий – полного спектра санитарно-керамических товаров.

      Для покупки товара в нашем интернет-магазине выберите понравившийся товар и добавьте его в корзину. Далее перейдите в Корзину и нажмите на «Оформить заказ» или «Быстрый заказ».

      Когда оформляете быстрый заказ, напишите ФИО, телефон и e-mail. Вам перезвонит менеджер и уточнит условия заказа. По результатам разговора вам придет подтверждение оформления товара на почту или через СМС. Теперь останется только ждать доставки и радоваться новой покупке.

      Оформление заказа в стандартном режиме выглядит следующим образом. Заполняете полностью форму по последовательным этапам: адрес, способ доставки, оплаты, данные о себе. Советуем в комментарии к заказу написать информацию, которая поможет курьеру вас найти. Нажмите кнопку «Оформить заказ».

      Оплачивайте покупки удобным способом. В интернет-магазине доступно 3 варианта оплаты:

      1. Наличные при самовывозе или доставке курьером. Специалист свяжется с вами в день доставки, чтобы уточнить время и заранее подготовить сдачу с любой купюры. Вы подписываете товаросопроводительные документы, вносите денежные средства, получаете товар и чек.
      2. Безналичный расчет при самовывозе или оформлении в интернет-магазине: карты Visa и MasterCard. Чтобы оплатить покупку, система перенаправит вас на сервер системы ASSIST. Здесь нужно ввести номер карты, срок действия и имя держателя.
      3. Электронные системы при онлайн-заказе: PayPal, WebMoney и Яндекс.Деньги. Для совершения покупки система перенаправит вас на страницу платежного сервиса. Здесь необходимо заполнить форму по инструкции.

      Экономьте время на получении заказа. В интернет-магазине доступно 4 варианта доставки:

      1. Курьерская доставка работает с 9.00 до 19.00. Когда товар поступит на склад, курьерская служба свяжется для уточнения деталей. Специалист предложит выбрать удобное время доставки и уточнит адрес. Осмотрите упаковку на целостность и соответствие указанной комплектации.
      2. Самовывоз из магазина. Список торговых точек для выбора появится в корзине. Когда заказ поступит на склад, вам придет уведомление. Для получения заказа обратитесь к сотруднику в кассовой зоне и назовите номер.
      3. Постамат. Когда заказ поступит на точку, на ваш телефон или e-mail придет уникальный код. Заказ нужно оплатить в терминале постамата. Срок хранения — 3 дня.
      4. Почтовая доставка через почту России. Когда заказ придет в отделение, на ваш адрес придет извещение о посылке. Перед оплатой вы можете оценить состояние коробки: вес, целостность. Вскрывать коробку самостоятельно вы можете только после оплаты заказа. Один заказ может содержать не больше 10 позиций и его стоимость не должна превышать 100 000 р.

      Дополнительная вкладка, для размещения информации о магазине, доставке или любого другого важного контента. Поможет вам ответить на интересующие покупателя вопросы и развеять его сомнения в покупке. Используйте её по своему усмотрению.

      Вы можете убрать её или вернуть обратно, изменив одну галочку в настройках компонента. Очень удобно.

      142 604 ₽/шт
      Уточняйте наличие
      В корзинуВ корзине
      Купить в 1 клик
      Рассчитать доставку
      Самовывоз сегодня - бесплатно
      Доставка завтра - 390 ₽
      Характеристики
      Бренд
      —
      GEBERIT
      Цена действительна только для интернет-магазина и может отличаться от цен в розничных магазинах
      GEBERIT
      Все товары категории
      Все товары бренда GEBERIT

      Нужна консультация?

      Наши специалисты ответят на любой интересующий вопрос
      Задать вопрос
      О компании
      Услуги
      Как купить
      Производители
      Магазины
      Контакты
      • Telegram
      • WhatsApp
      +7 (383) 287-94-27
      info@keramiknsk.ru
      г. Новосибирск ТВК "Красный Мамонт" ул. Светлановская 50 к1, 1 этаж салон "Керамик"
      Подписаться на рассылку
      Политика конфиденциальности
      2026 © keramiknsk.ru - интернет-магазин плитки и сантехники
      Каталог
      По всему сайту
      По каталогу