Дизайн-проект
Дизайн-проект
При покупке керамической плитки и керамогранита в нашем салоне Вы получаете 3D проект в ПОДАРОК!
В нашем салоне вы можете заказать 3D проект нужного Вам помещения, с помощью которого можно оценить дизайн и расположение элементов интерьера, просчитать предварительную стоимость и в случае необходимости внести соответствующие изменения на стадии проекта.
Преимущества данной услуги :
3D-визуализация продемонстрирует все тонкости и нюансы проекта, о которых Вы могли даже не задуматься;
возможность увидеть и оценить различные варианты укладки покрытий с учетом их реальных цветов, орнаментов, размеров и т. д. именно в Вашем помещении,
Помимо качественной 3D-визуализации, наша программа выполнит расчет материалов, исходя из размеров ремонтируемого помещения и настроек проекта. Данная функция поможет наиболее точно спланировать расходы на материалы.
Цветная схема раскладки облегчит работу Вашего мастера и поможет избежать ошибок при укладке плитки.
Для того, чтобы проект и расчеты плитки были максимально точными, нужно подготовиться:
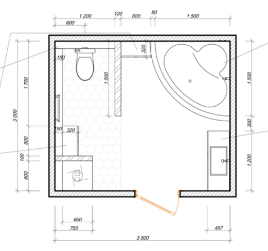
1. Снимите точные размеры Вашего помещения с учетом коробов и нарисуйте подробную схему расположения мебели и сантехники, см. пример:

2.Подготовьте для примера варианты интерьера, которые Вас вдохновляют.
3. Выберите самостоятельно, либо с нашей помощью варианты керамической плиты или керамогранита, которые Вы хотите увидеть в 3d визуализации в Вашем помещении.
Мы прорисуем вам проект, выставим счет, а после оплаты отправим раскладки для вашего мастера.
4. Обсудим условия самовывоза, доставки и подъёма товара.
